マンション
「利回り」は、当該不動産の1年間の予定賃料収入の不動産取得対価に対する割合であり、公租公課その他当該物件を維持するために必要な費用の控除前のものです。
また、予定賃料収入が確実に得られる事を保証するものではありません。

地上10階建てで毎日心地よく暮らせます。デザイン性のあるシステムキッチン付きなので、キッチンがお洒落なスペースになっています。お掃除がしやすいIHキッチンです。フローリングは掃除が簡単です。人生で一度あるかないかの不動産購入で、失敗なんてしたら取り返しが付かないですよね。そんなことがないように、当社の経験豊富なスタッフがしっかりとサポートいたします(^^)

※地図上の物件位置は近隣に物件が所在することを表すものであり、実際の物件所在地とは異なる場合がございます。
046-240-1982
営業時間:9:30~19:30 / 定休日:年末年始
| 所在地 | 神奈川県大和市下鶴間2丁目 6-17 | ||
|---|---|---|---|
| 交通 |
小田急江ノ島線 「鶴間」駅
徒歩19分 小田急江ノ島線 「南林間」駅 徒歩26分 小田急江ノ島線 「大和」駅 徒歩33分 |
||
| 価格 | 3,400万円 | 管理費 | 12,630円 |
| 修繕積立金 | 15,690円 | 修繕積立基金 | |
| 所在階/階数 | 1階 / 10階建 地下1階 | 築年月(築年数) | 2006年 2月(築19年) |
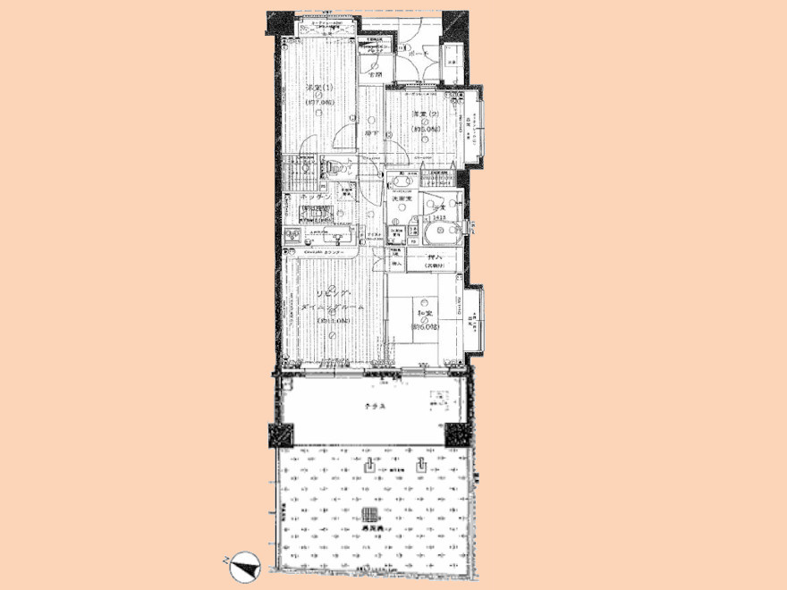
| 間取り |
3LDK
|
||
| 専有面積 | 71.30㎡ | バルコニー面積 | 13.20㎡ |
| 建物構造 | 鉄筋コンクリート(RC) | 主要採光面 | 北西 |
| 引渡し | 即時 | ||
| 管理 | 管理形態:管理会社に全部委託、 管理員の勤務形態:日勤、 管理組合:有、 管理会社:ライフポート西洋 | ||
| 土地権利 | 所有権 | 用途地域 | 準工業地域 |
| 土地の権利形態 | |||
| 駐車場 | |||
| 設備条件 | 公共下水 / 公営水道 / ペット相談 / ペット飼育可 / リフォーム / 室内洗濯機置場 / フローリング / 専用庭 / 駐輪場 / バイク置場あり / IHクッキングヒーター / コンロ2口以上 / システムキッチン / 対面式キッチン / コンロ3口 / バス・トイレ別 / 洗面台 / 独立洗面台 | ||
| その他条件 | |||
| 備考 |
※年中無休(年末の5日間を除く)水曜日も休まず営業 ■━━━━━━~弊社の注目情報~━━━━━━━━━ ┃弊社提携住宅ローン利用の場合、全期間最大-2.125%優遇。 ┃変動金利0.5%にて融資可能。 ┃※適用には、条件・審査がございます。 ┃平日・土日・祝日問わずご案内致します。 ┃お車でお迎えに伺います。 ■━━━━━━━━━━━━━━━━━━━━━━━━ ●●●住宅ローン相談会のお知らせ●●●●●● 不動産は、「物件を見る」からではなく、 「どのようにローンを組む」からスタート すると失敗しません!! 当店は、 「最適な銀行で最優遇金利の審査を通す」 「難しい条件でも、きめ細かい銀行との折衝で審査を通す」 という強みを持っております。 特に、以下のような場合は、まずご相談ください。 ・買替ローン(現住居の住宅ローンが丸々残っている) ・自営業や確定申告者である場合 ・国民健康保険に加入している場合 ・過去10年以内に分割払い(携帯含む)などの ・支払いを遅れたことがある場合 |
||
| 周辺の学校 | |||
| 取引態様 | 仲介 | 物件番号 | 99414144 |
| 情報公開日 | 2026年1月15日 | 次回更新予定日 | 2026年1月29日 |
| 取引条件の有効期限 | 2026年1月29日 | ||
| 取扱い会社 |
株式会社CORE 大和店 〒242-0011 神奈川県大和市深見3861 国土交通大臣(1)第10504号 |
||
046-240-1982
営業時間:9:30~19:30 / 定休日:年末年始
| 所在地 | 物件の住所を表示。(詳細住所は表示していない場合もある) | ||
|---|---|---|---|
| 交通 | 物件(部屋)の沿線駅・バス停を表示。(複数駅・バス停の利用が可能な場合は最大3件まで) | ||
| 間取り/詳細 | 数字は居室数を表示。LDKはそれぞれ「リビング」「ダイニング」「キッチン」、S(納戸)とは「納戸」「サービスルーム」「マルチルーム」「フリールーム」など建築基準法第28条に適合していないため、居室と認められない納戸その他の部分を表す。 | ||
| 価格 | 販売されている住戸の価格を表示。仲介手数料は含まない。 | ||
| 管理費 | 共同住宅の設備その他共用部分の維持および管理をするために必要な費用を表示。 | ||
| 修繕積立金 | 共用部分の修繕のために積立てる金額を表示。 | ||

中古マンション
| 価格 | 3,300 万円 | ||
|---|---|---|---|
| 間取り | 3LDK | 築年月(築年数) | 1999年 11月 (築26年) |
| 専有面積 | 67.86㎡ | 階数 | 14階建 |
| 住所 | 神奈川県大和市南林間2丁目11-15 | ||
| 交通 |
小田急江ノ島線「南林間」駅 徒歩2分 小田急江ノ島線「鶴間」駅 徒歩11分 東急田園都市線「中央林間」駅 徒歩19分 |
||
中古マンション
| 価格 | 3,300 万円 | ||
|---|---|---|---|
| 間取り | 3LDK | 築年月(築年数) | 1999年 11月 (築26年) |
| 専有面積 | 67.86㎡ | 階数 | 3階建 |
| 住所 | 神奈川県大和市南林間2丁目 | ||
| 交通 |
小田急江ノ島線「南林間」駅 徒歩2分 小田急江ノ島線「鶴間」駅 徒歩11分 東急田園都市線「中央林間」駅 徒歩19分 |
||
中古マンション
| 価格 |
値下げ:2025/10/18 3,500 万円 | ||
|---|---|---|---|
| 間取り | 3LDK | 築年月(築年数) | 2009年 10月 (築16年) |
| 専有面積 | 68.08㎡ | 階数 | 5階建 |
| 住所 | 神奈川県大和市林間2丁目 | ||
| 交通 |
小田急江ノ島線「南林間」駅 徒歩4分 小田急江ノ島線「鶴間」駅 徒歩13分 東急田園都市線「中央林間」駅 徒歩20分 |
||
中古マンション
| 価格 | 3,698 万円 | ||
|---|---|---|---|
| 間取り | 3LDK | 築年月(築年数) | 2003年 3月 (築22年) |
| 専有面積 | 77.68㎡ | 階数 | 9階建 |
| 住所 | 神奈川県大和市下鶴間2767-5 | ||
| 交通 |
小田急江ノ島線「鶴間」駅 徒歩13分 小田急江ノ島線「南林間」駅 徒歩20分 東急田園都市線「つきみ野」駅 徒歩27分 |
||
中古マンション
| 価格 |
値下げ:2025/11/28 3,780 万円 | ||
|---|---|---|---|
| 間取り | 3LDK | 築年月(築年数) | 1996年 2月 (築29年) |
| 専有面積 | 68.98㎡ | 階数 | 6階建 |
| 住所 | 神奈川県大和市つきみ野1丁目 | ||
| 交通 |
東急田園都市線「つきみ野」駅 徒歩11分 小田急江ノ島線「南林間」駅 徒歩21分 東急田園都市線「中央林間」駅 徒歩23分 |
||
【外観】