新築一戸建住宅
「利回り」は、当該不動産の1年間の予定賃料収入の不動産取得対価に対する割合であり、公租公課その他当該物件を維持するために必要な費用の控除前のものです。
また、予定賃料収入が確実に得られる事を保証するものではありません。

物件を効率よく内覧するには鍵の手配等の準備がございますので、お電話でのご予約がスムーズ。(当日ご案内可能な物件もございます。)メールでのご相談も承りますのでお気軽にお問い合わせください。

※地図上の物件位置は近隣に物件が所在することを表すものであり、実際の物件所在地とは異なる場合がございます。
046-240-1982
営業時間:9:30~19:30 / 定休日:年末年始
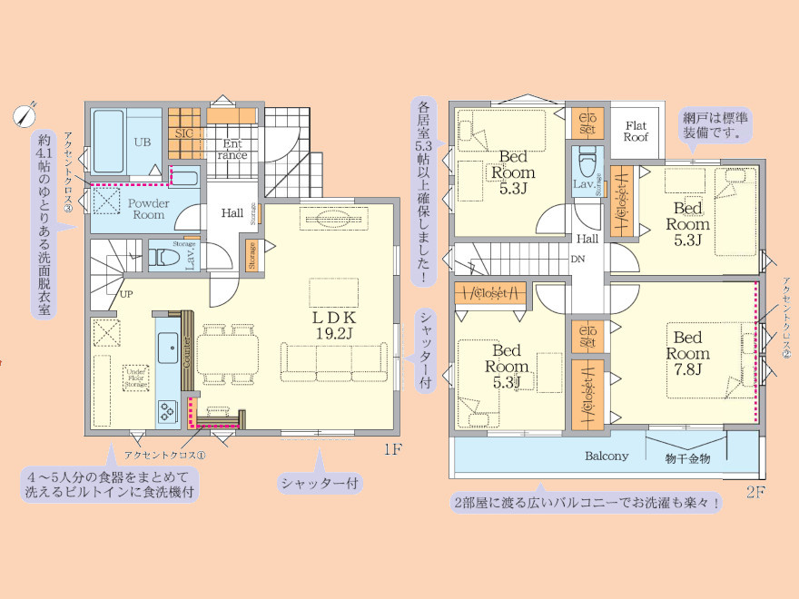
| 所在地 | 神奈川県大和市上和田 | ||
|---|---|---|---|
| 交通 |
小田急江ノ島線 「桜ヶ丘」駅
徒歩15分 相鉄本線 「瀬谷」駅 徒歩28分 小田急江ノ島線 「大和」駅 徒歩30分 |
||
| 価格 | 5,099万円 | ||
| 間取り |
4LDK
LDK 19.2帖 / 洋室 7.8帖 / 洋室 5.3帖 / 洋室 5.3帖 / 洋室 5.3帖 / |
||
| 築年月(築年数) | 2026年 2月(新築) | 主要採光面 | |
| 建物構造 | 木造 | 階数 | 2階建 |
| 私道負担面積 | セットバック | ||
| 接道状況 | 角地 (北東側 公道4.5m 間口9.4m) (南東側 公道 間口5.1m) | ||
| 建ぺい率/容積率 | 50%/ 100% | 土地権利 | 所有権 |
| 地目 | 宅地 | 地勢 | |
| 土地の権利形態 | |||
| 都市計画 | 用途地域 | 第一種低層住居専用地域 | |
| その他法令上の制限 | |||
| 国土法届出 | 不要 | 取引態様 | 仲介 |
| 現況 | 完成済み | 引渡し | 即時 |
| 駐車場 | |||
| 設備条件 | フローリング / バルコニー / 24時間換気システム / 食器洗い乾燥機 / システムキッチン / 対面式キッチン / バス・トイレ別 / 追焚機能浴室 / 浴室乾燥機 / トイレ2ヶ所 / 浴室1坪以上 / 床下収納 / ウォークインクロゼット / ウォークインシューズクロゼット / 収納豊富 | ||
| その他条件 | |||
| 備考 |
※年中無休(年末の5日間を除く)水曜日も休まず営業 ■━━━━━━~弊社の注目情報~━━━━━━━━━ ┃弊社提携住宅ローン利用の場合、全期間最大-2.125%優遇。 ┃変動金利0.5%にて融資可能。 ┃※適用には、条件・審査がございます。 ┃平日・土日・祝日問わずご案内致します。 ┃お車でお迎えに伺います。 ■━━━━━━━━━━━━━━━━━━━━━━━━ ●●●住宅ローン相談会のお知らせ●●●●●● 不動産は、「物件を見る」からではなく、 「どのようにローンを組む」からスタート すると失敗しません!! 当店は、 「最適な銀行で最優遇金利の審査を通す」 「難しい条件でも、きめ細かい銀行との折衝で審査を通す」 という強みを持っております。 特に、以下のような場合は、まずご相談ください。 ・買替ローン(現住居の住宅ローンが丸々残っている) ・自営業や確定申告者である場合 ・国民健康保険に加入している場合 ・過去10年以内に分割払い(携帯含む)などの ・支払いを遅れたことがある場合 |
||
| 周辺の学校 | |||
| 建築確認番号 | 第25UDI1W建06725号 | 物件番号 | 101673896 |
| 情報公開日 | 2026年3月10日 | 次回更新予定日 | 2026年3月24日 |
| 取引条件の有効期限 | 2026年3月24日 | ||
| 取扱い会社 |
株式会社CORE 大和店 〒242-0011 神奈川県大和市深見3861 国土交通大臣(1)第10504号 |
||
046-240-1982
営業時間:9:30~19:30 / 定休日:年末年始
| 所在地 | 物件の住所を表示。(詳細住所は表示していない場合もある) | ||
|---|---|---|---|
| 交通 | 物件(部屋)の沿線駅・バス停を表示。(複数駅・バス停の利用が可能な場合は最大3件まで) | ||
| 間取り/詳細 | 数字は居室数を表示。LDKはそれぞれ「リビング」「ダイニング」「キッチン」、S(納戸)とは「納戸」「サービスルーム」「マルチルーム」「フリールーム」など建築基準法第28条に適合していないため、居室と認められない納戸その他の部分を表す。 | ||
| 価格 | 販売されている住戸の価格を表示。仲介手数料は含まない。 | ||
| 管理費 | 共同住宅の設備その他共用部分の維持および管理をするために必要な費用を表示。 | ||
| 修繕積立金 | 共用部分の修繕のために積立てる金額を表示。 | ||

新築一戸建住宅
| 価格 | 4,580 万円 ~ 4,680 万円 | ||
|---|---|---|---|
| 間取り | 3LDK ~ 4LDK | 築年月(築年数) | 2026年 2月 (建築中) |
| 建物面積 | 97.70㎡ ~ 98.53㎡ | 土地面積 | 125.10㎡ |
| 住所 | 神奈川県大和市上和田 | ||
| 交通 |
小田急江ノ島線「桜ヶ丘」駅 徒歩20分 小田急江ノ島線「高座渋谷」駅 徒歩31分 相鉄いずみ野線「いずみ野」駅 徒歩43分 |
||
新築一戸建住宅
| 価格 | 4,780 万円 | ||
|---|---|---|---|
| 間取り | 4LDK | 築年月(築年数) | 2025年 5月 (新築) |
| 建物面積 | 101.02㎡ | 土地面積 | 101.93㎡ |
| 住所 | 神奈川県大和市桜森2丁目 | ||
| 交通 |
相鉄本線「相模大塚」駅 徒歩6分 相鉄本線「さがみ野」駅 徒歩12分 相鉄本線「かしわ台」駅 徒歩31分 |
||
新築一戸建住宅
| 価格 |
値下げ:2026/03/12 4,999 万円 | ||
|---|---|---|---|
| 間取り | 4LDK | 築年月(築年数) | 2026年 1月 (新築) |
| 建物面積 | 89.61㎡ | 土地面積 | 110.21㎡ |
| 住所 | 神奈川県大和市南林間7丁目 | ||
| 交通 |
小田急江ノ島線「南林間」駅 徒歩14分 小田急江ノ島線「鶴間」駅 徒歩23分 東急田園都市線「中央林間」駅 徒歩27分 |
||
新築一戸建住宅
| 価格 | 4,999 万円 ~ 5,349 万円 | ||
|---|---|---|---|
| 間取り | 4LDK | 築年月(築年数) | 2025年 12月 (建築中) |
| 建物面積 | 104.81㎡ ~ 105.78㎡ | 土地面積 | 111.35㎡ ~ 112.93㎡ |
| 住所 | 神奈川県大和市福田5丁目 | ||
| 交通 |
小田急江ノ島線「桜ヶ丘」駅 徒歩11分 小田急江ノ島線「高座渋谷」駅 徒歩22分 小田急江ノ島線「大和」駅 徒歩37分 |
||
新築一戸建住宅
| 価格 | 5,490 万円 ~ 5,590 万円 | ||
|---|---|---|---|
| 間取り | 4LDK | 築年月(築年数) | 2025年 9月 (新築) |
| 建物面積 | 100.60㎡ ~ 102.67㎡ | 土地面積 | 123.70㎡ ~ 148.13㎡ |
| 住所 | 神奈川県大和市中央林間西5丁目 | ||
| 交通 |
東急田園都市線「中央林間」駅 徒歩13分 小田急江ノ島線「南林間」駅 徒歩20分 小田急小田原線「小田急相模原」駅 徒歩30分 |
||
【間取り】閑静な住宅地で子育て家族にピッタリ。ゆとりある住環境が整っています。